Bản vẽ tủ điện điều khiển công nghiệp thiết kế
- Bản vẽ tủ điện điều khiển cần những thông tin gì?
- Thông số tải và điện áp định mức
- Kích thước và loại hình tủ điện
- Cấu trúc và bố trí linh kiện
- Kích thước và thông số kỹ thuật
- Sơ Đồ Mạch Điện
- Bảng Điều Khiển
- Ký Hiệu và Kết Nối
- Thông tin kỹ thuật
- Cách thiết kế bản vẽ tủ điện công nghiệp
- Thu thập thông tin:
- Lựa chọn phần mềm thiết kế:
- Vẽ sơ đồ nguyên lý tủ điện:
- Vẽ sơ đồ bố trí tủ điện:
- Vẽ bản vẽ chi tiết các bộ phận của tủ điện:
- Kiểm tra bản vẽ:
- In ấn bản vẽ:
- Một số kỹ hiệu bản vẽ tủ điện phổ biến
- Thiết kế tủ điều khiển tự động tại Thiên Phú Thịnh
Tủ điện được coi là thành phần quan trọng trong nhiều hệ thống điện công nghiệp. Dù bản vẽ tủ điện có nhiều ký hiệu và thuật ngữ chuyên ngành, nhưng với kiến thức cơ bản và hiểu rõ nguyên tắc cơ điện, bạn có thể dễ dàng đọc hiểu. Vậy bản vẽ tủ điện điều khiển cần những thông tin gì?
Bản vẽ tủ điện điều khiển cần những thông tin gì?
Yêu cầu thông tin cần có trong bản vẽ thiết kế tủ điện điều khiển bao gồm :
Thông số tải và điện áp định mức
-
Bản vẽ tủ điện phải ghi rõ công suất tiêu thụ điện của toàn hệ thống, bao gồm tổng công suất và dòng điện định danh của các thiết bị, máy móc được đấu nối vào tủ. Bên cạnh đó, cần xác định rõ mức điện áp định mức của hệ thống (220V, 380V…).
Kích thước và loại hình tủ điện
-
Bản vẽ cần có đầy đủ số đo về đường kính, chiều cao, chiều rộng, chiều sâu của tủ điện.
-
Loại hình tủ điện phải được chỉ định rõ ràng, ví dụ: tủ đứng độc lập, treo tường hay tủ âm tường.
Cấu trúc và bố trí linh kiện
-
Bản vẽ cần thể hiện chi tiết vị trí lắp đặt của nguồn điện, bộ điều khiển, bộ chuyển đổi, thiết bị bảo vệ quá dòng và các thành phần khác bên trong tủ điện.
Kích thước và thông số kỹ thuật
-
Cấu trúc cơ khí bản vẽ tủ điện gồm khung, cửa và các chi tiết khác, cần được trình bày rõ ràng trong bản vẽ.
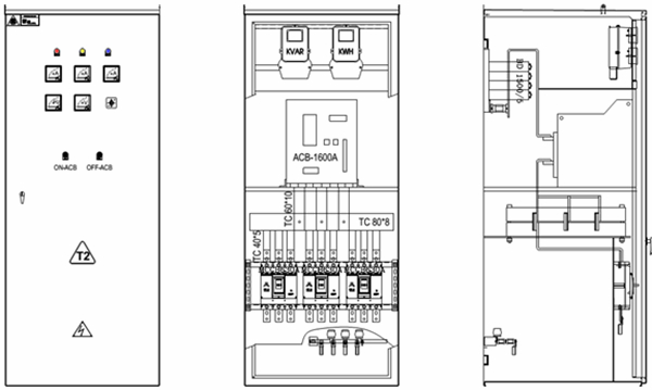
Sơ Đồ Mạch Điện
-
Bản vẽ layout tủ điện vẽ sơ đồ hệ thống điện của tủ điện, bao gồm phân hệ nhưnhư cấp điện, điều khiển, bảo vệ và liên kết.
-
Các phần tử cấu thành trong mỗi phân hệ điện, chẳng hạn như khóa chuyển mạch, điện trở biến thiên, rơ le, điều khiển logic khả trình và các thiết bị điện tử khác.
-
Hệ thống dây dẫn và các điểm kết nối giữa các phần tử trong hệ thống điện.
Bảng Điều Khiển
-
Vị trí và công năng của các khóa chuyển mạch, đèn tín hiệu, đồng hồ đo, nút nhấn và các thiết bị kiểm soát khác trên bảng điều khiển.
-
Diễn giải về công năng và quy tắc vận hành của các nút ấn trong bảng điều khiển, khóa chuyển mạch cũng như đèn tín hiệu.
Ký Hiệu và Kết Nối
-
Các ký hiệu và sơ đồ được dùng để phân biệt giữa từng phần tử và liên kết trong tủ điện.
-
Ký hiệu tủ điện dùng để phân biệt giữa phần tử và đường dây điện.
-
Ký hiệu phần tử, chẳng hạn như rơ le, điện trở cảm ứng, ổ cắm, và các linh kiện điện tử khác.
-
Minh hoạ liên kết giữa các phần tử trên hệ thống dẫn điện hiệu bằng các điểm đấu nối.
Thông tin kỹ thuật
-
Các chỉ tiêu kỹ thuật then chốt của tủ điện bao gồm điện áp danh định, cường độ dòng điện, tần số hoạt động và công suất tiêu thụ.
-
Thông tin kỹ thuật của các thành phần chủ đạo bên trong tủ điện như hệ thống cấp điện, thiết bị điều khiển và cơ cấu bảo vệ chống dòng quá tải.
-
Những tiêu chuẩn kỹ thuật bổ sung khác, chẳng hạn như hiệu năng, tuổi thọ, cùng các quy định an toàn khác, bao gồm chất liệu cấu tạo vỏ tủ, lớp phủ sơn tĩnh điện, v.v.
Cách thiết kế bản vẽ tủ điện công nghiệp
Thiết kế bản bản vẽ tủ điện công nghiệp là một công việc quan trọng, đòi hỏi tính tỉ mỉ, cẩn thận và tuân thủ các yêu cầu kỹ thuật nhất định. Dưới đây là các bước hướng dẫn cách thiết kế bản vẽ chi tiết tủ cấp điện công nghiệp:
-
Thu thập thông tin:
-
Xác định mục đích sử dụng (điều khiển động cơ, chiếu sáng, bơm nước).
-
Tính toán công suất thiết bị.
-
Liệt kê các thiết bị cần thiết (aptomat, contactor, rơ le).
-
Chọn kích thước tủ điện phù hợp.
-
Lựa chọn phần mềm thiết kế:
-
Sử dụng các công cụ như AutoCAD Electrical, EPLAN.
-
Phù hợp với kỹ năng người thiết kế.
-
Vẽ sơ đồ nguyên lý tủ điện:
-
Mô tả logic kết nối các thiết bị.
-
Sử dụng ký hiệu điện chuẩn.
-
Chỉ rõ hướng dòng điện.
-
Vẽ sơ đồ bố trí tủ điện:
-
Xác định vị trí các thiết bị (aptomat, contactor).
-
Đặt thanh ray, giá đỡ.
-
Vị trí nút nhấn, đèn báo.
-
Ghi chú kích thước, khoảng cách.
-
Vẽ bản vẽ chi tiết các bộ phận của tủ điện:
-
Kích thước, vật liệu tủ điện.
-
Chi tiết thanh ray, giá đỡ.
-
Bảng điều khiển, đèn báo.
-
Kiểm tra bản vẽ:
-
Đảm bảo chính xác, logic.
-
Sửa lỗi sai sót.
-
In ấn bản vẽ:
-
In bản vẽ ra giấy có chất lượng tốt.
-
Lưu file điện tử theo định dạng phù hợp.
Xem thêm: Tủ điện 3 pha công nghiệp thiết kế theo yêu cầu
Một số kỹ hiệu bản vẽ tủ điện phổ biến
Một số ký hiệu trong bản vẽ tủ điện điều khiển
-
Tủ điện phân phối tổng – MSB – Main Switch Board
-
Tủ điện phân phối trung gian ký hiệu MDB – Main Distribution Board (Trung gian giữa MSB và DB)
-
Tủ trung thế ký – RMU – Ring Main Unit
-
Tủ điện phân phối/Tủ điều khiển ký hiệu DB – Distribution Board
-
Tủ điện chuyển mạch ký hiệu ATS – Automatic Transfer Switchs
-
Tủ điện chiếu sáng LP – Lighting Panel
-
Tủ điện điều khiển động cơ ký hiệu MCC – Motor Control Center
Một số ký hiệu trong bản vẽ tủ điện thiết bị lắp đặt:
-
CB (Circuit Breaker)
-
MCB (Miniature Circuit Breaker)
-
MCCB (Molded Case Circuit Breaker)
-
ACB (Air Circuit Breaker)…
-
PLC (Programmable Logic Controller)
-
HMI (Human-Machine Interface)
-
Bộ điều khiển tốc độ động cơ (VFD – Variable Frequency Drive)
-
Bộ điều khiển nhiệt độ, bộ điều khiển áp suất (DDC, PLC, …)
Thiết kế tủ điều khiển tự động tại Thiên Phú Thịnh
Công ty TNHH Tự Động Hoá Thiên Phú Thịnh là công ty hoạt động lâu năm trong lĩnh vực tư vấn, thi công thiết bị điện, điều khiển và tự động hoá tại các nhà máy, khu công nghiệp. Chúng tôi luôn mong muốn đồng hành cùng quý khách với những sản phẩm chất lượng, an toàn và hiệu quả.
Tất cả sản phẩm tủ điện động lực do chúng tôi thiết kế và thi công luôn đảm bảo chất lượng, an toàn và tiết kiệm chi phí cho người tiêu dùng. Tại Thiên Phú Thịnh:
-
Bảo hành 12 tháng với tủ điện
-
Giá cả cạnh tranh.
-
Hỗ trợ kỹ thuật, lắp đặt 24/7
-
Thiết kế đa dạng các bản vẽ yêu cầu theo tiêu chuẩn, như bản vẽ tủ điện chiếu sáng, bản vẽ tủ điện 3 pha, bản vẽ tủ điều khiển bơm,...
-
Đội ngũ kỹ thuật viên có trình độ, đội ngũ kỹ sư có hơn 10 năm kinh nghiệm,
Bạn đang băn khoăn cơ sở sản xuất tủ điện công nghiệp theo yêu cầu uy tín? Hãy liên hệ với chúng tôi để được hỗ trợ tư vấn miễn phí. Thiên Phú Thịnh cam kết đem đến cho bạn sản phẩm tốt nhất!
Xem thêm: Tủ điều khiển nhiệt độ tự động theo yêu cầu



THIÊN PHÚ THỊNH cung cấp đa dạng BIẾN TẦN - PLC - HMI - TỦ ĐIỆN - THIẾT BỊ ĐÓNG CẮT - CẢM BIẾN - KHỞI ĐỘNG MỀM: Biến tần Simphoenix; Biến tần Yaskawa; Biến tần ABB; Biến tần FUJI; Biến tần Mitsubishi; Biến tần Danfoss; Biến tần Hitachi; Biến tần Veichi; Biến tần Shihlin; Biến tần Siemens; Biến tần Xinje; Biến tần Inovance; Biến tần Nidec Control Techniques; Biến tần Schneider; Biến tần Delta; Biến tần LS; Linh kiện biến tần;....
Công ty TNHH Tự Động Hóa Thiên Phú Thịnh - TPT Automation
Địa chỉ: Số 1B, Đường Tú Xương, Khu Phố 1, Phường Hiệp Phú, TP Thủ Đức
Hotline/Zalo: 0909 623 689
Email: Thienphuthinh.auto@gmail.com
Fanpage: https://www.facebook.com/TPTAutomation
Website: https://thienphuthinh.vn/
Tìm hiểu thêm: https://sieuthibientan.com.vn






Xem thêm